Двухкомнатная квартира в новостройке 66,70 м2 по ул. Ярославская 115 за 9871600 руб.

Адрес
Адрес Ярославская, 115
Описание
Цена 9 871 600 р. (148 000 р./м2)
Подать заявку на ипотеку
Количество комнат Двухкомнатная
Этаж 11
Этажность дома 12
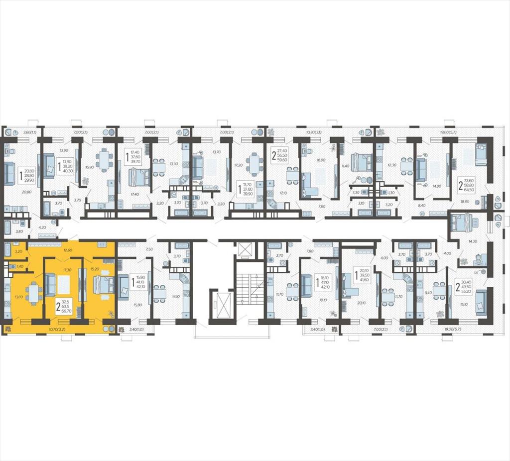
Общая S, м2 66,70
Жилая S, м2 32,50
S кухни, м2 13,80
Продается 2-комнатная квартира в новостройке ЖК «Небо» по адресу : город Краснодар, Ярославская улица, Литер Литер 3. Общая площадь квартиры - 66.7 кв. м., этаж 11 из 12. Без отделки, но с возможностью заказать отделку. Преимущества квартиры: большая кухня, просторная прихожая, большая лоджия Срок сдачи - квартал года. Жилой комплекс «Небо» расположен в районе улицы Ярославская в непосредственной близости от одной из основных магистралей города Краснодар – улицы Дзержинского. Удобная транспортная доступность обеспечена наличием удобного выезда на основные магистрали города – ул. Дзержинского и Ростовское шоссе. В 300 местах от дома расположена остановка общественного транспорта. Для комфортного заезда и выезда из жилого комплекса проектом предусмотрено 2 въезда и выезда. Но несмотря на транспортную доступность, вблизи самого ЖК низкий автомобильный трафик, который обеспечивает тишину и приватность окружения, а также более высокую безопасность для пешеходов. На территории ЖК оборудована 9-этажная автостоянка открытого типа. Традиционно большое внимание уделено благоустройству и озеленению придомовой территории, более 80% территории отдано жителям ЖК «Небо». Номер квартиры 230. Подъезд №2. id: 34984
Квартира в новостройке в Краснодаре
Дата 16.12.2025 2:26:48
Объявление № 23803753
Дата подачи:
16 декабря 2025 г. 2:26
Дата обновления:
16 декабря 2025 г. 2:26
Просмотров 5 Хотите продать быстрее?

Продавец
Агентство недвижимости:
Андреева Ирина Сергеевна
email: 89225397055avega@gmail.co m
Показать номер телефона
Пожаловаться
Комментарии:
Добавить